欢迎进入:林州市东赵贺现铸造有限公司网站 在线留言   联系我们
   
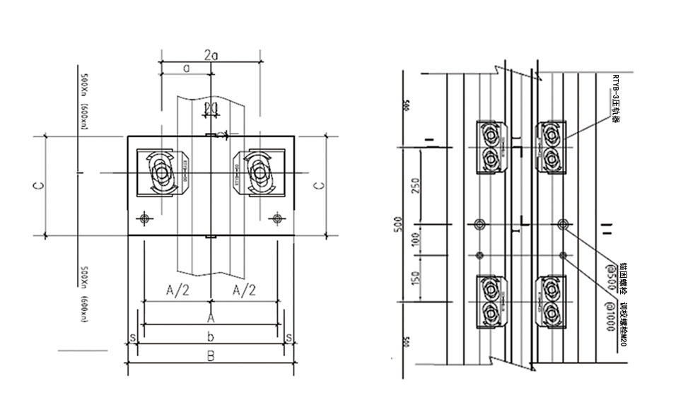
锐拓 RTYB压轨器采用钢板式地面轨固定装置安装示意图
 

适用范围:

适应于地面整体道床、砼吊车梁、采用预埋螺栓固定,可调轨道间距10mm,可广泛用于堆取料机、地面龙门吊、码头、船厂、船坞轨道固定。
间距布置: 间距为500mm,具体施工时可根据实际情况作适当调整。当Q大于200吨,可选用双孔RTYB-3或弹性RTYB-4。当Q小于200吨时,可选用单孔RTYB-l或弹性RTYB-2。
钢板大小尺寸:
C值大于250mm,根据实际情况可做调整。当起重量较大或条件许可时可通铺设。B值详见施工图。


 
锐拓RTYB压轨器在打孔钢梁及打孔砼粱中的改造应用

 

 

[1] [2] 页(共2页)

首页     关于我们     公司产品     生产设备     联系我们                                                                     专注:RTYB系列     HXLK系列     焦化设备

林州市东赵贺现铸造有限公司     版权所有    备案序号: 豫ICP备08103186号    电话:0372—6551357     手机:13937235707    

技术支持:志成网络    地址:河南林州市东赵工业园